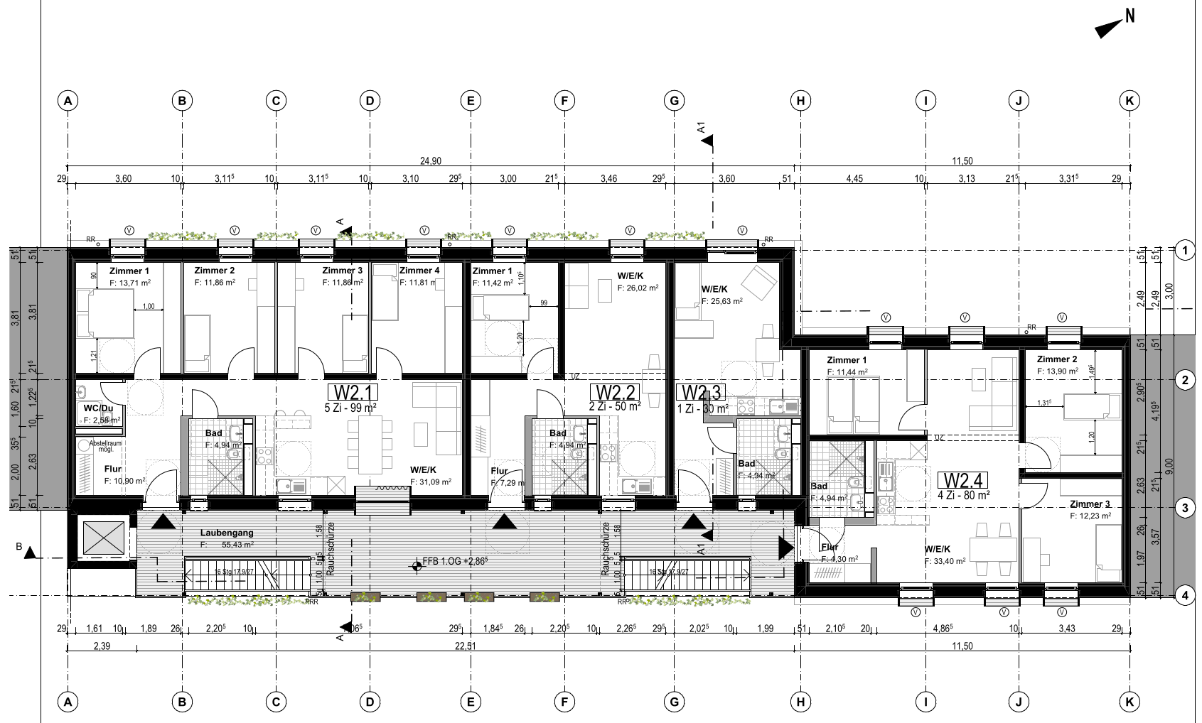
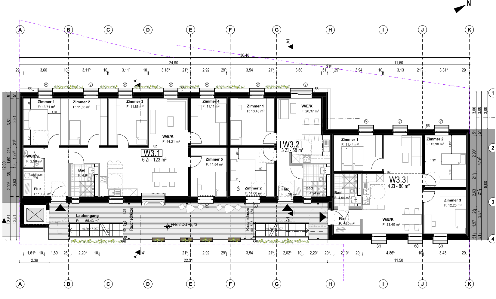
Das Haus
Wir errichten ein Haus in Holzbauweise, das das Grundstück möglichst optimal mit Wohnraum auslastet. Die Wohnungen sind über Laubengänge erschlossen, die auch als Ersatz für Balkone und als Treffpunkt für die Bewohner*innen dienen.
Auf den vier Geschossen entstehen insgesamt 14 Wohnungen – von Kleinstwohnungen für Singles bis zu großen Wohnungen mit sechs Zimmern für große WGs oder Familien ist alles dabei. Dabei achten wir bei den Grundrissen darauf, möglichst flexible Räume zu schaffen, die sich für alle Lebenssituationen und ‑entwürfe eignen.
Die Fassade wird mit Holz verkleidet. Auf dem Dach und an der Fassade befinden sich Solarmodule. Das Flachdach wird unterhalb der Solarmodule als extensives Gründach ausgeführt, um die Regenwasserzurückhaltung zu fördern und ein Habitat für Vögel und Insekten zu bieten.
Konzepte
Meilensteine

Finanzierung
Die Finanzierung beruht wie bei über 200 anderen Projekten im Mietshäuser Syndikat auf folgenden Säulen:

Alle Menschen können sich an der Finanzierung beteiligen und einen Kredit direkt dem Hausverein Velohaven e.V. oder der VELOHAVEN GmbH mit vereinbartem Betrag, Zins und Rückzahlungskonditionen leihen. Dieses Geld wird von Banken als Velohaven-Eigenkapital anerkannt.
Quartier Kleineschholz
Unmittelbar beim Rathaus, im Stadtteil Stühlinger, entwickelt sich das neue Wohnquartier Kleineschholz. Es ist als nachhaltiges, inklusives und urbanes Viertel geplant – mit ausschließlich gemeinwohlorientiertem Wohnungsbau.
Familien, Singles, Alleinerziehende, kinderlose Paare, ältere Menschen, Studierende und Menschen mit Behinderung sollen sich hier ein bezahlbares Zuhause schaffen können.
Mehr zum Quartier Kleineschholz auf freiburg.de
Am 13.09.2025 haben sich alle Projekte, die einen Zuschlag für ein Grundstück auf Kleineschholz erhalten haben, auf dem Platz der alten Synagoge vorgestellt. Wir von VELOHAVEN waren mit dabei, um diesen farbenfrohen Tag mitten in Freiburg zu gestalten. Wir haben Pizza gebacken, Fahrradketten gefettet, gesungen, jongliert, sind Stelzen gelaufen und haben vielen Menschen von VELOHAVEN erzählt, denn wir wollen nicht nur wohnen, sondern auch Freiburg mitgestalten. Danke an Aman Ohnesorge für das schöne Video und die tollen Impressionen.
Das Mietshäuser Syndikat
Hausprojekt
Velohaven ist ein Hausprojekt von vielen in Deutschland im Verbund des Mietshäuser Syndikats. 210 Hausprojekte und 20 Projektinitiativen (im Aufbau) in Deutschland bilden einen festen Verbund. Jedes dieser bestehenden Hausprojekte ist autonom, d. h. rechtlich selbstständig mit einem eigenen Unternehmen, einer GmbH, das die Immobilie besitzt.
Keine Privatisierung
Bei den langen Zeiträumen, die unserem Plan zugrunde liegen, könnten negative Entwicklungen auftreten. Was ist, wenn Hausprojekte, die in die Jahre kommen und über nennenswerte ökonomische Spielräume verfügen, auf den Solidartransfer pfeifen und sich aus dem Verbund verabschieden? Besonders fatal wäre, wenn kollektives Eigentum nach Jahren oder Jahrzehnten entgegen den besten Absichten und Festlegungen der Gründer*innengeneration gewinnbringend verkauft und privatisiert würde. Beispiele dafür gibt es in der Geschichte selbstorganisierter Projekte genügend. Wie idealistisch und sozial die Satzungsbestimmungen eines Hausvereins oder einer Hausgenossenschaft auch formuliert sein mögen – mit einer entsprechenden Mehrheit der Mitglieder könn(t)en Beschlüsse zur Privatisierung bzw. zum Hausverkauf gefasst und, falls erforderlich, die Satzung geändert werden.
Stimmrecht gegen Hausverkauf
Um solchen Entwicklungen einen Riegel vorzuschieben, weisen alle Hausprojekte des Mietshäuser Syndikats eine Besonderheit auf. Der Eigentumstitel der Immobilie liegt nicht unmittelbar beim Hausverein, sondern bei einer Gesellschaft mit beschränkter Haftung. Diese Haus-GmbH hat genau zwei Gesellschafter, zum einen den Hausverein, zum anderen das Mietshäuser Syndikat als eine Art Kontroll- oder Wächterorganisation: In bestimmten Angelegenheiten wie Hausverkauf, Umwandlung in Eigentumswohnungen oder ähnlichen Zugriffen auf das Immobilienvermögen hat das Mietshäuser Syndikat Stimmrecht; und zwar genau eine Stimme. Die andere Stimme hat der Hausverein. Das hat zur Folge, dass in diesen Grundlagenfragen eine Veränderung des Status quo nur mit Zustimmung beider Gesellschafter beschlossen werden kann: Weder der Hausverein noch das Mietshäuser Syndikat können überstimmt werden.
Selbstorganisation
Damit aber das Selbstbestimmungsrecht der Mieter_innen nicht von der „Kontrollorganisation“ ausgehebelt werden kann, ist das Stimmrecht des Mietshäuser Syndikats auf wenige Grundlagenfragen beschränkt. Bei allen anderen Angelegenheiten hat generell der Hausverein alleiniges Stimmrecht: Wer zieht ein? Wie werden Kredite besorgt? Wie wird umgebaut? Wie hoch ist die Miete? Diese Entscheidungen und die Umsetzung ist alleinige Sache derjenigen, die im Haus wohnen und arbeiten.






